

پروژه شیرین اولر در شهر جدید گلمان واقع در 8 کیلومتری شهر ارومیه
ساخته و تکمیل گردید، 108 واحد مسکونی از 287 واحد پروژه طرح مهر که آزاد سازی شده و سند شش دانگ ( پروژه ای شخصی ) تبدیل گشته است و در ساخت آن از تکنولوژِی LSF استفاده شده است.
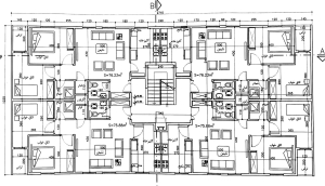
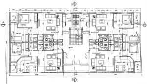
این پروژه دارای بلوک های دو طبقه (همکف، طبقه اول و دوم) و هر طبقه 4 واحد جمعا 12 واحد که از 10 واحد دو خوابه 75 متری و دو واحد تک خوابه 66 متری تشکیل شده است که 8 بلوک از آن واگذار کشته است. این پروژه در سال 1402 به صورت 100% به پایان رسید.

واحد 66 متری مفید با نقشه ای دلباز که نسبت به واحد های 2 خوابه آشپزخانه بزرگتری دارد، درمجموع فقط 14 واحد تکخوابه در مجتمع وجود دارد و همگی در طبقه همکف می باشد ( دو واحد از چهار واحد همکف) همه واحد ها کمد دیواری ، انباری و فرنگی دارند .
واحد 75 متری مفید با نقشه ای زیبا آشپزخانه به سبک آشپزخانه اسلامی کاملا با پذیرایی جداست و اپن طراحی نشده است دو خواب جادار هردو نورگیر یکی از خوابها مکان کمد دیواری تعبیه گردیده و درب تراس در همین خواب قرار دارد، در هر بلوک 10 واحد دو خواب ساخته شده و به جز همکف با 2 واحد دوخواب دو طبقه دیگر هر کدام 4 واحد دوخواب دارد ، تمام واحد ها مجهز به انباری و توالت فرنگی می باشند،
طرح سه بعدی شهرک شیرین اولر که البته 287 واحد طراحی گردیده که فعلا 108 واحد توسط هیات امنا رسانه و طراحان به بهره برداری رسیده است و تغییراتی نیز نسبت به این طرح صورت گرفته است این طرح در سال 1396 انجام گردید .
نمای داخلی خام و مبله واحد های 66 متری مجتمع مسکونی شیرین اولر
نمای داخلی خام و مبله واحد های 75 متری مجتمع مسکونی شیرین اولر
تبلیغهای ابتدا و انتهای پروژه و دعوت به پیش خرید و خرید
شماره های تماس: 04432252625-09141414551
ایمیل: meisam.satari@gmail.com
وبسایت: www.meisamsatari.ir
اینستگرام: meisamsatari